The number of battery storage projects is increasing in the UK, and across America to support renewable energy. A measure of ‘not-in-my-backyard’ resistance is inevitable, especially in quiet rural areas where open spaces near cities are still available.
Unfortunately, a small number of lithium battery fires at these sites is increasing this resistance. We report on the controversy surrounding Statera Energy’s project near Chickerell, Dorset, England, which has spurred public resistance.
Why the Resistance to This Particular Battery Storage Project?
BBC News provided an update on the Chickerell project on October 19, 2023. It cites West Dorset MP Chris Loder saying “Fire safety of lithium-ion batteries on such an enormous scale, and in such proximity to a developed residential area is a cause for serious concern, as well as the aesthetic impact on the surrounding countryside.”
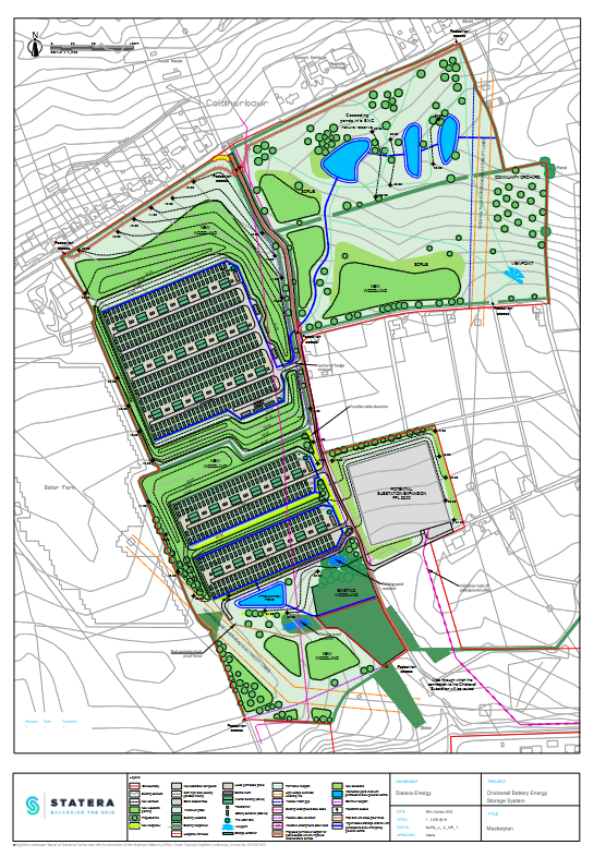
The project could become one of the largest battery storage projects in Europe, with a rating of 400 megawatts. The developer told BBC News the facility is in the national – and global – interest. It will store energy when the grid has adequate resources, and release it during times of high demand.

The project will also release more than 16 hectares of previously inaccessible land into the public domain, with new footpaths for villagers to explore. None the less, the Dorset Campaign for the Protection of Rural England, plus over a hundred private individuals have lodged objections. They claim the 60 containers will be unsightly and a fire risk.
Fire Safety Measures Proposed by Statera Energy
Statera Energy concedes, “There is some fire risk associated with battery energy storage systems due to thermal runaway“. However, they undertake to mitigate this this by spacing the batteries wider apart, and conducting regular maintenance. Further passive precautions will include:
- Batteries within containers designed to suppress any fire breakout.
- Cooling systems to maintain battery temperatures within safe limits.
- Battery management systems able to slow, and shut down batteries.
There are few items of technology nowadays that do not carry an element of risk. Global warming is forcing us to introduce some of these changes. We can’t see an easy alternative. But we do need to keep searching for new, more efficient energy-storage devices, while considering the needs of local residents too.

More Information
California Storage Batteries – Stakes Are High
Alternative Energy Storage Round Up